很多時候
我們并不是很
了解這個設備,
那么我們就需要好好的
分析這個設備了。 GN19-10戶內
高壓隔離開關介紹與分析需要我們好好的了解。
GN19-10系列戶內高壓隔離
開關主要用于GG-1A、XGN2-12型
10KV高壓開關柜內,在分斷真空開關后才能操作此隔離開關,不能帶負荷分合,在停機時可形成明顯的開點,保護人身和設備的安全。
一、開關概述
GN19-10(GN19-10C)系列戶內高壓隔離開關適用于交流50Hz,額定
工作電壓6,
10KV;額定工作電流200、630、1250A的電力系統中。作為有電壓無負荷情況下的分斷,閉合電路的戶內
開關設備使用。此隔離開關配用 CS6-1 型手力操動機構。
二、
型號及含義

GN19-10戶內高壓隔離開關型號中,形式分為GN19-10平裝結構式;GN19-10C為穿墻式(帶套管);其中:C1--轉動在套管側
C2--開斷在套管側,C3--兩側均為套管。GN19-10Y平裝結構式上加裝
帶電顯示裝置型式。
一般常見的型號有以下幾種:
GN19-10A400A GN19-10/630A GN19-10/1000A GN19-10/1250A
GN19-10C/400A GN19-10C/630A GN19-10C/1000A GN19-10C/1250A
三、主要技術參數
|
型號 |
額定工作電壓(KV) |
最高工作電壓(KV) |
額定工作電流(A) |
動穩定電流(峰值)(KA) |
2S熱穩定電流(KA) |
|
GN19-10/400-12.5 |
10 |
11.5 |
400 |
31.5 |
12.5 |
|
GN19-10/630-20 |
10 |
11.5 |
630 |
50 |
20 |
|
GN19-10/1000-31.5 |
10 |
11.5 |
1000 |
80 |
31.5 |
|
GN19-10/1250-40 |
10 |
11.5 |
1250 |
100 |
40 |
|
GN19-10C/400-12.5 |
10 |
11.5 |
400 |
31.5 |
12.5 |
|
GN19-10C/630-20 |
10 |
11.5 |
630 |
50 |
20 |
|
GN19-10C/1000-31.5 |
10 |
11.5 |
1000 |
80 |
31.5 |
|
GN19-10C/1250-40 |
10 |
11.5 |
1250 |
100 |
40 |
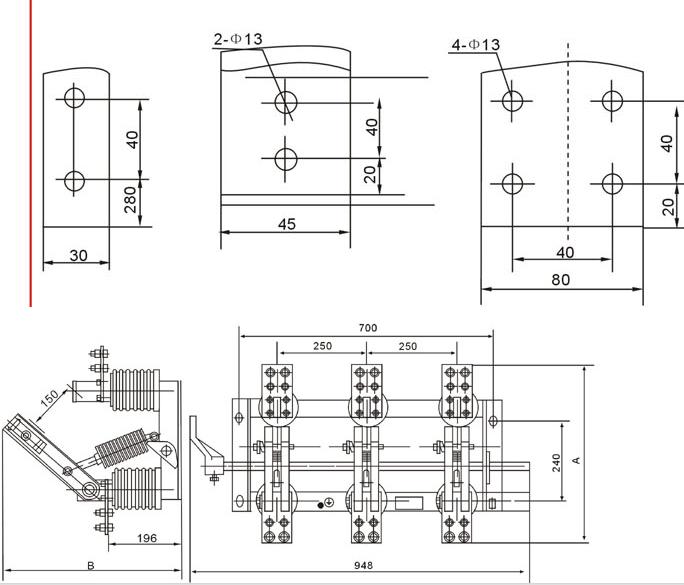
四、外形及安裝尺寸

五、結構和工作
原理
GN19-10/400A、GN19-10/630A、GN19-10/1000A、GN19-10/1250A戶內高壓隔離開關的每相導電部分通過兩個支柱絕緣子固定在底座上。(GN19-10C/400A、GN19-10C/630A、GN19-10C/1000A、GN19-10C/1250A型則為一個為支柱絕緣子,一個為瓷套管絕緣子)三相平行安裝,導電部分由觸刀、靜觸頭、觸座(或導電桿)組成。每相觸刀中間均連有拉桿絕緣子,拉桿絕緣子與安裝在底座上的主軸相連。主軸通過手柄與連桿和CS6-1型手力機構相連在一起連動。
觸刀由兩片槽形銅板組成,它不僅增大了觸刀散熱面積,對降低溫度有利,而且提高了觸刀的機械強度,使開關的動穩定性提高。觸刀一端通過螺栓安裝在觸座上(或導電桿上)。為轉動接觸觸刀,另一端與靜觸刀系可分連接,而觸刀觸壓力靠兩端的彈簧來維持。
戶內高壓隔離開關在接觸處安排有磁鎖板,加磁鎖板的目的是,當很大的短路電流通過時加強了兩槽形觸刀之間的吸引力,亦即增加了接觸壓力,因而提高了開關的動熱穩定性。 GN19- 10/400A 、 GN19-10/630 隔離開關極即通過電流小。因此結構無需加磁鎖板。
底座裝配:由底座、主軸、限位器、止檔圈等組成。限位器主要用來保證導電觸刀分、合時得到所要求的終點位置,合分到位后給提供給
電氣回路一個信號。
六、使用環境
1.海拔高度不超過 2000 米;
2.周圍環境溫度不高于 +40 ℃及不低于 -10℃;
3.無劇烈振動、擺動或沖擊的場所;
4.無火災、爆炸、腐蝕金屬破壞絕緣的有害氣體及導電場所;
5.相對
濕度不大于 90%(+25℃
七、安裝注意
GN19-10型戶內高壓隔離開關分為上隔離開關和下隔離開關,上隔離開關一般安裝在高壓
開關柜的上部,下端接真空開關,最下端接下隔離開關,根據要求,下隔離開關不是
高壓開關柜必配。